Status: Study, project, construction execution
Type: Family house
Location: Vištuk
Usable area: 438 m²
Built-up area: 362 m²
Date: 01/2024
Renovation of a terraced house into a duplex creates a space for small community activities.
Existing condition

Vizualizácie: Dom pri studni





Vizualizácie: Dom pri orechu



Hmotová štúdia interiéru: Dom pri studni





Hmotová štúdia interiéru: Dom pri orechu



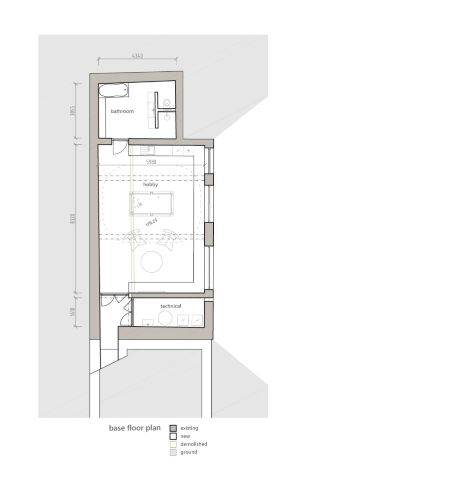
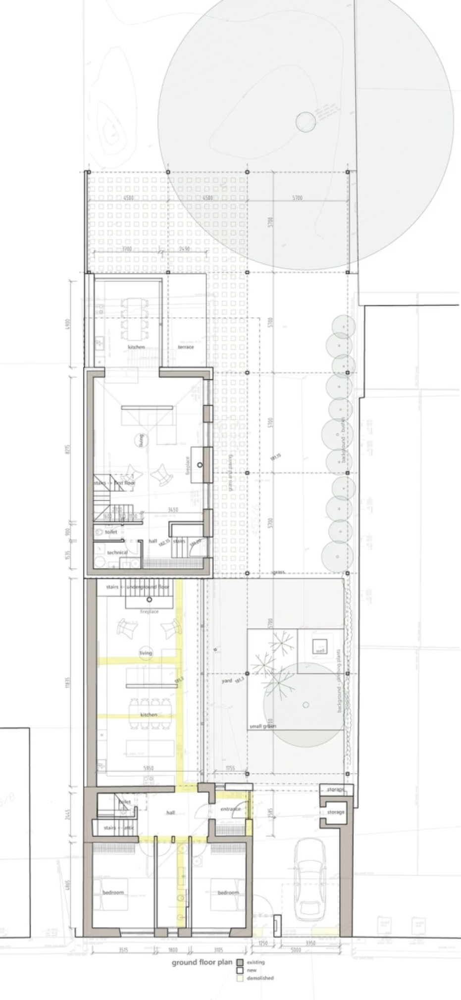
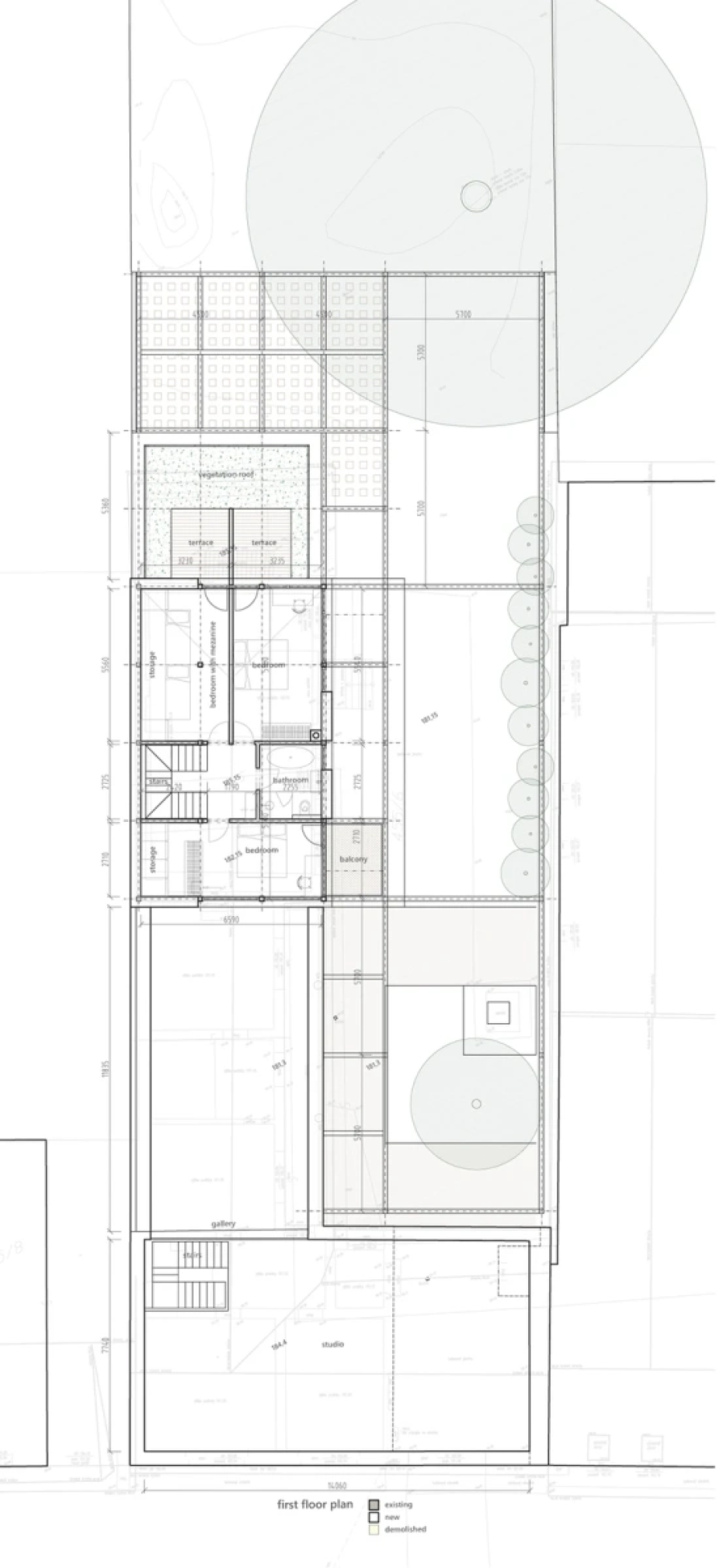
Plány



