At the Edge of the Heritage Zone
Status: Study, project, completed
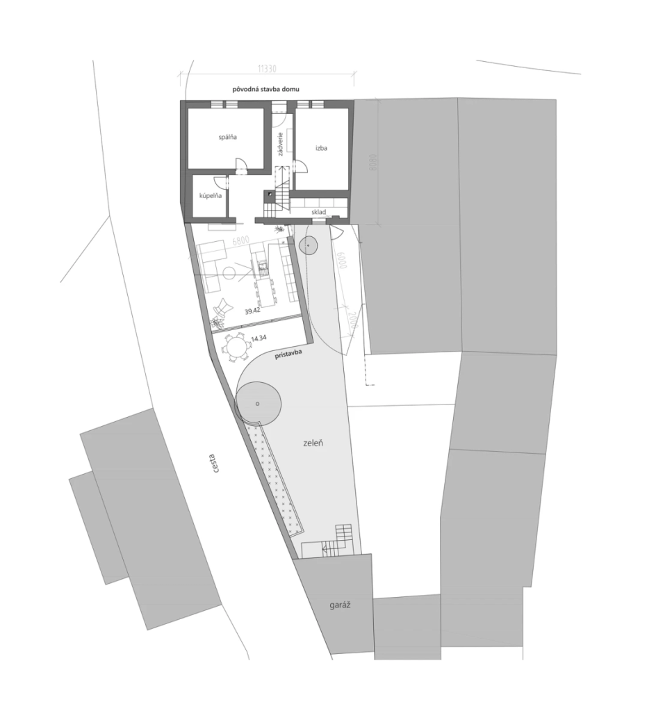
Type: Family house
Location: Modra
Usable area: 145 m²
Built-up area: 187 m²
Date: 10/2021
Visualisations





Existing condition

Status: Study, project, completed
Type: Family house
Location: Modra
Usable area: 145 m²
Built-up area: 187 m²
Date: 10/2021






