Status: study, project, completed
Location: Modra
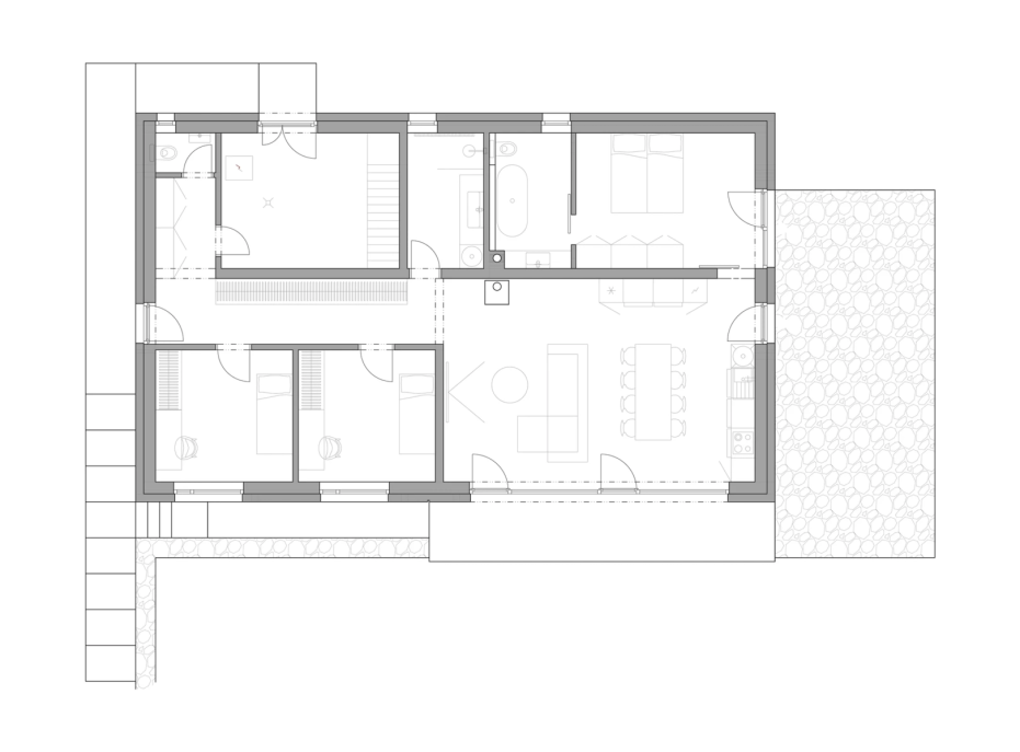
Usable area: 123 m²
Gross floor area: 156 m²
Date: 06/2022
House Hidden in the Forest is a rational, confidently self-assured individual nestled among the trees.
Character
The house in the forest is self-assured because it does not demand to compete for attention in a visual battle with neighboring buildings. It does not need a garden, as it already enjoys a view of the forest. It does not require a tall masonry fence, being located on the edge of an urbanized area. It is not protected from strong sunlight, but summer sun rarely penetrates the trees. It does not even need a balcony, as it is situated on a hill. This approach saved the owner costs both at the entrance and in operation. Last but not least, the old well-known motto applies: “There is beauty in simplicity.”
Photo












Visualisations




Visualisations of other concept






Realization






Plans

