Vinotéka Juran, Modra
Stav: štúdia
Druh: vinotéka
Miesto: Modra
Termín: 03/2020
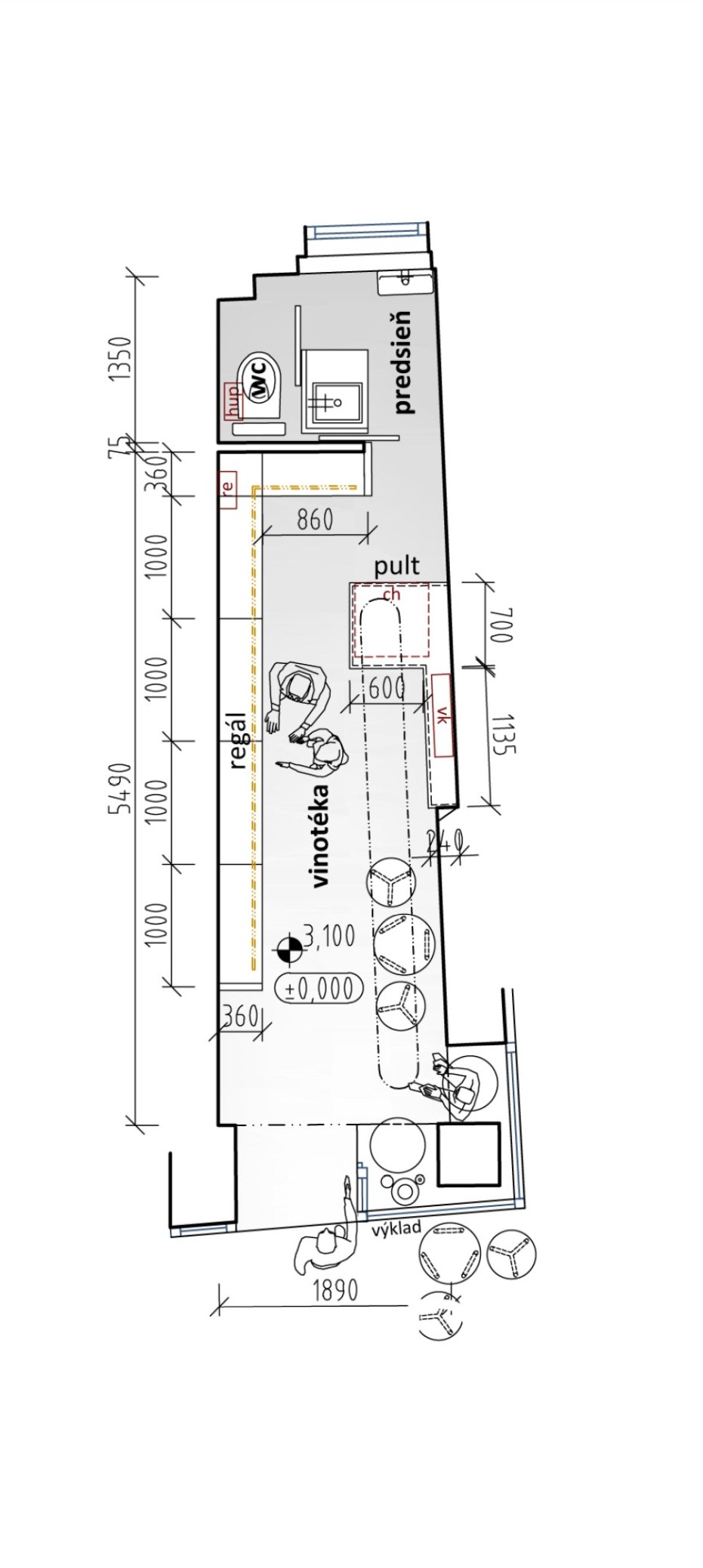
Štúdia interiéru predajne vína v Modre.
Vizualizácie




Pôdorys

Stav: štúdia
Druh: vinotéka
Miesto: Modra
Termín: 03/2020
Štúdia interiéru predajne vína v Modre.




