Interiér I&M
Stav: štúdia
Druh: interiér rodinného domu
Miesto: Modra
Termín: 09/2020
Svetlé, dubové, ratanové, prútené a látkové kombinácie spolu tvoria charakter bytu.
Charakter
Na významovo dôležitých miestach sú použité farebné a materiálové akcenty – lamely v kombinácii: čierny podklad a dubové drevo, čierny nábytok a doplnky. To všetko na bielom pozadí stien a v spolupráci s množstvom kvetín má pozitívne nabiť budúcich obyvateľov.
Vizualizácie












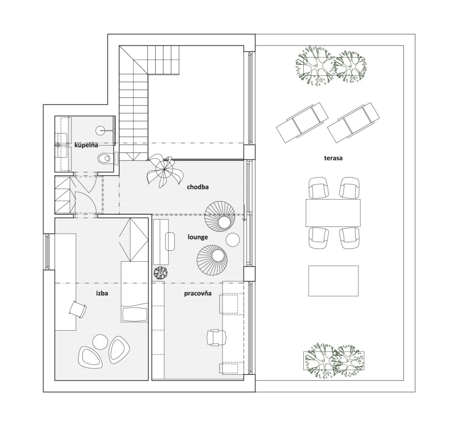
Pôdorys

