Vinotéka Cor-wine, Modra
Stav: štúdia
Druh: vinotéka
Miesto: Modra
Termín: 05/2018
Štúdia interiéru predajne vína v Modre
Vizualizácie



Geometria

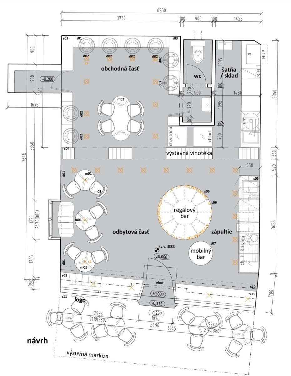
Pôdorys

Stav: štúdia
Druh: vinotéka
Miesto: Modra
Termín: 05/2018
Štúdia interiéru predajne vína v Modre




