Tri izby v dvojizbovom byte
Stav: štúdia, projekt, realizácia
Druh: byt
Miesto: Bratislava
Termín:
projekt - 11/2024
realizácia - 2025
Foto











Vizualizácie














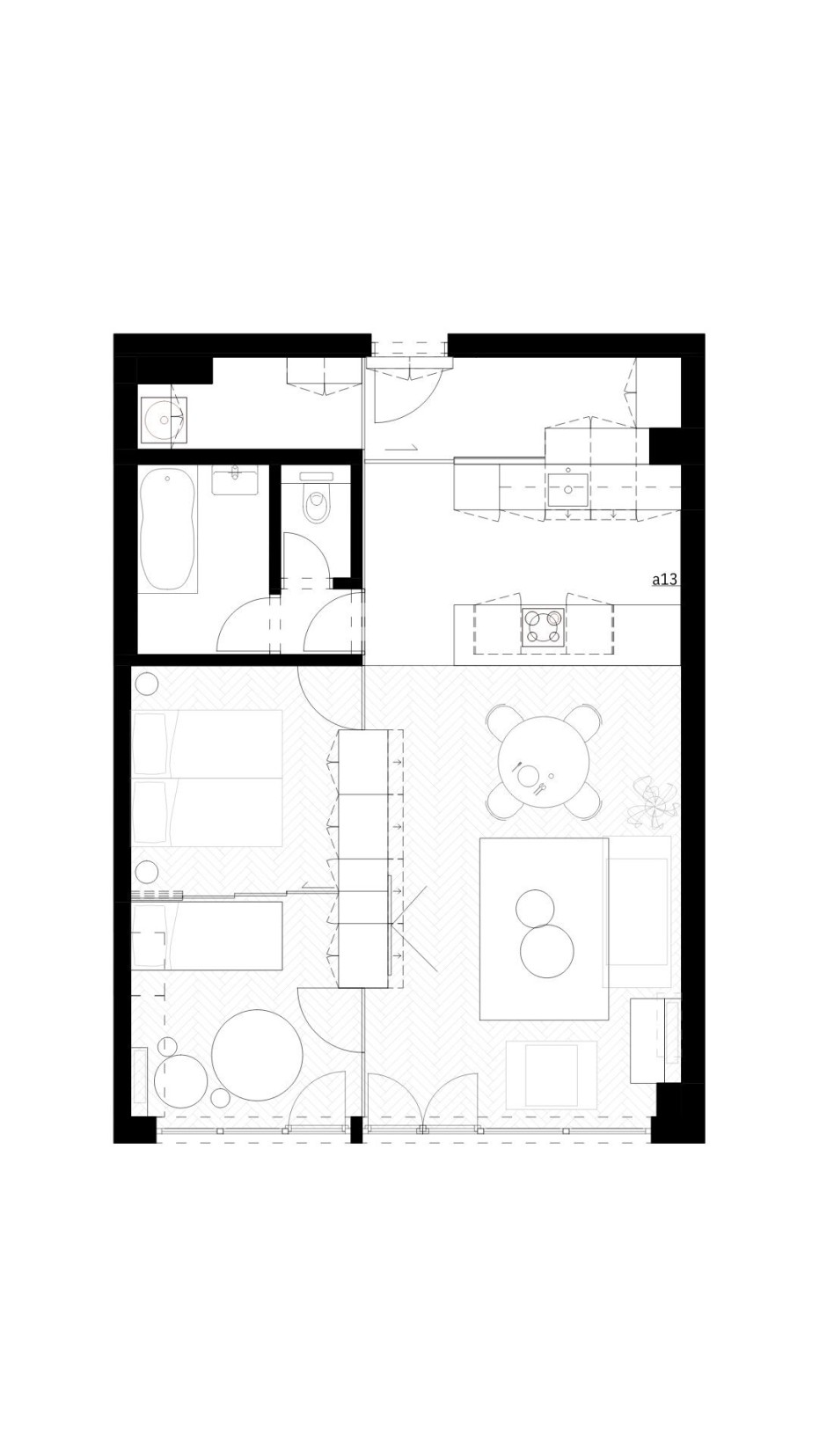
Pôdorys

Stav: štúdia, projekt, realizácia
Druh: byt
Miesto: Bratislava
Termín:
projekt - 11/2024
realizácia - 2025

























