M-MAS
Status: Study, project, completed
Location: Holíč
Authors: Matúš Bišťan, Martin Medlen (Architects, HIP), Peter Pasečný (Landscape Architect)
Usable Area: 3,278 m²
Indoor Sales Area: 1,724 m²
Outdoor Sales Area: 2,300 m²
Built-up Area: 3,836 m²
Exterior










Interior



main staircase

two-story technical room behind a glazed wall

glass floor


shop for Plumbing, Heating, and Hardware Supplies





bathroom showroom


Concept



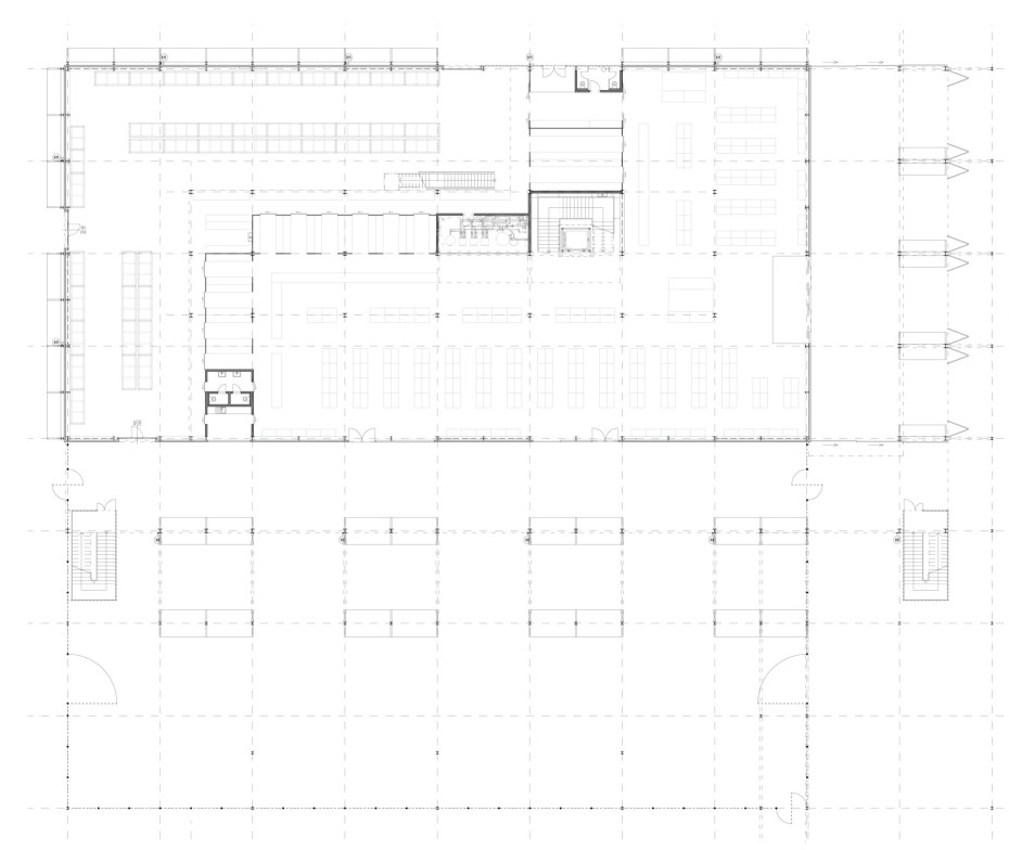
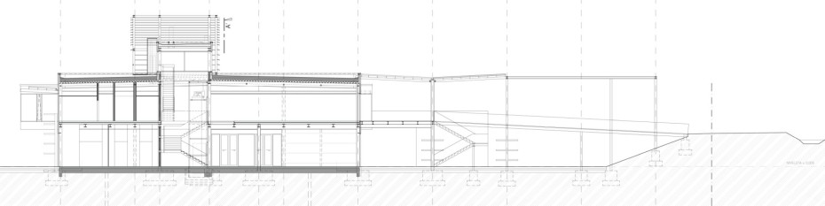
Plans

site

groundfloorplan

firstfloor plan

section